連接件模型
Connector Model
Connector Model
聯系APAS / Contact us
- 地址:天津市西青經濟技術開發區賽達國際工業城A3-2.
- 郵箱:lxc@apas.com.cn
- 電話:022-87920088
- 傳真:請聯系網絡管理員
- 郵編:300385
- 咨詢熱線:13702119190(24小時服務熱線)
連接件模型
/ Connector Model

40/50系列鋁型材角槽連接件3d模型下載
產品描述 / Name
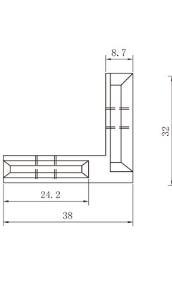
角槽連接件屬于高強度便捷式連接配件,適用于鋁型材框架90度直角連接,本內容詳細描述了90度角槽連接件怎使用以及安裝示意圖,設計師可以下載solidworks三維模型進行框架的設計搭建;
022-87920099
可以根據需求進行設計加工,提供上門安裝服務;可以根據特殊需求進行鋁型材開模定制。
* 免費提供工業鋁型材選型手冊 →點擊咨詢
內容來源:http://www.muuo.cn 作者:武將 發布日期:2019年10月15日 09時27分 閱讀次數:4547 次
| 40系列角槽連接件可以同時適用于40系列和50系列鋁型材標準槽型,主要用于兩支鋁型材90度直角連接,可以將角槽連接件分別置入兩支鋁型材凹槽之內然后利用頂絲鎖緊即可實現快速連接; |
| ? |
![]() ![]()
|
| ? |
| 角槽連接件屬于別解釋快速連接配件,主要適用于鋁型材框架快速連接組裝,但連接強度相對于打孔攻絲或階梯孔連接方式較弱,設計師可以根據使用需求以及框架的物理強度需求進行連接方式選擇; |
| ? |
|
槽型規格
|
螺紋
|
材質
|
訂貨編號
|
|
槽8
|
M6
|
鋁合金/碳鋼
|
CE-IB3238-M6-8-40
|
聯系APAS/ Contact us
天津艾普斯工業鋁型材股份有限公司
聯系電話:022-87920088
企業傳真:(避免惡意廣告)請聯系該企業網絡管理員
服務熱線:13702119190 (24小時服務熱線)
Q Q:534973906
企業郵箱: lxc@apas.com.cn
企業地址:天津市西青經濟技術開發區賽達國際工業城A3-2
聯系電話:022-87920088
企業傳真:(避免惡意廣告)請聯系該企業網絡管理員
服務熱線:13702119190 (24小時服務熱線)
Q Q:534973906
企業郵箱: lxc@apas.com.cn
企業地址:天津市西青經濟技術開發區賽達國際工業城A3-2
采購意向留言:* 為必填















QQ咨詢
電話聯系
聯系電話

在線留言
樣冊下載
